STUDIO
Lavori
Contatti
STUDIO
Lavori
Contatti
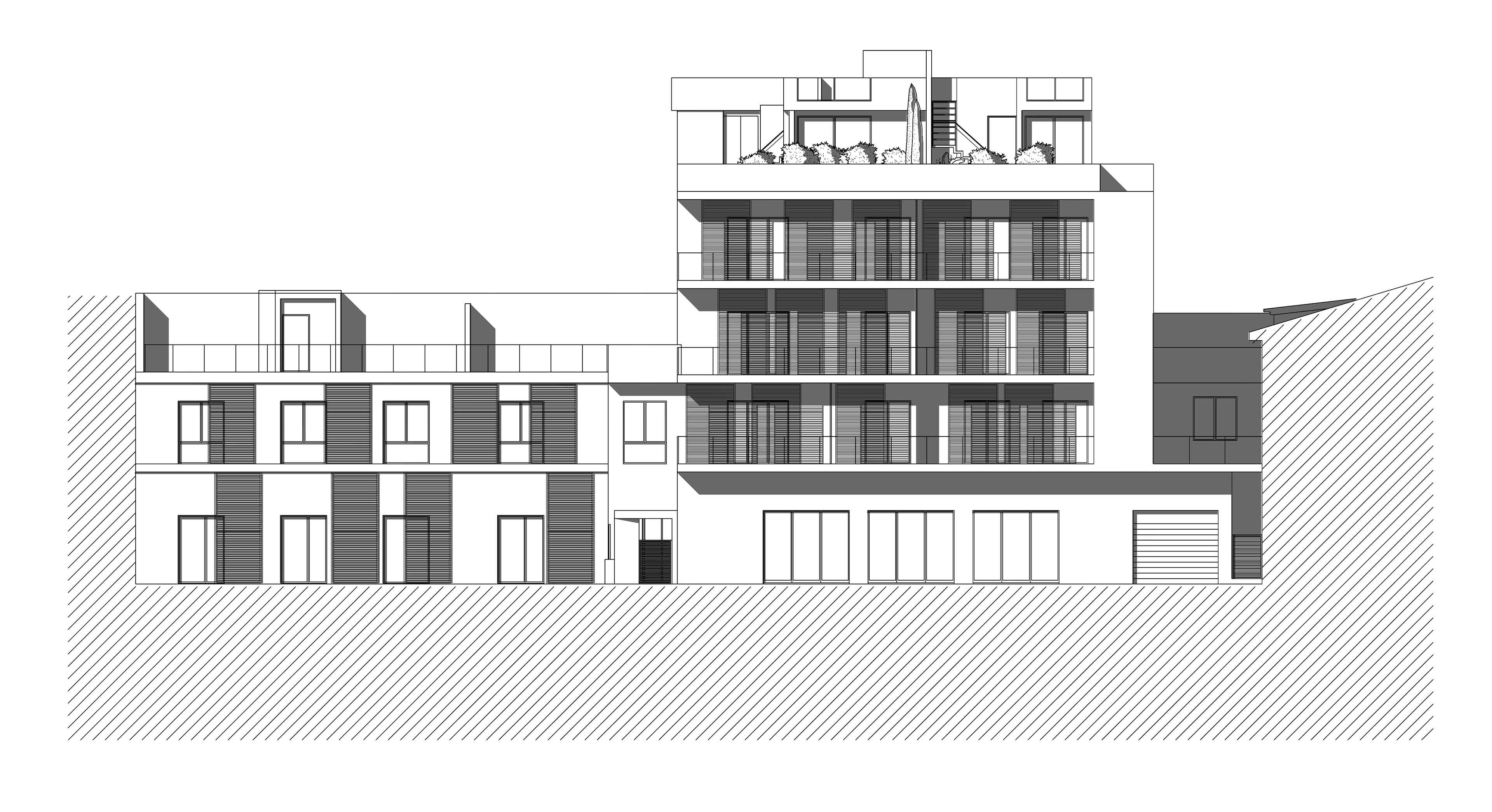
O P I F I C I O N U O V O
ristrutturazione con recupero architettonico e strutturale di fabbricato esitente - grosseto
You may also like
T U R C A C C H I O L O
2014
A P P A R T A M E N T O_C
2016
s t u d i o d e n t i s t i c o
2023
G R A F I C H E_C A S C H I
2008
L U C C H E S I
2018
m y _ c o z y _ c l o u d s
2024
A P P A R T A M E N T O P _ I
2018
S O T T O T E T T O
2024
V I L L A B I F A M I L I A R E
2020
t o r r e d i s _ g
2024
↑
Back to Top