STUDIO
Lavori
Contatti
STUDIO
Lavori
Contatti
L U C C H E S I
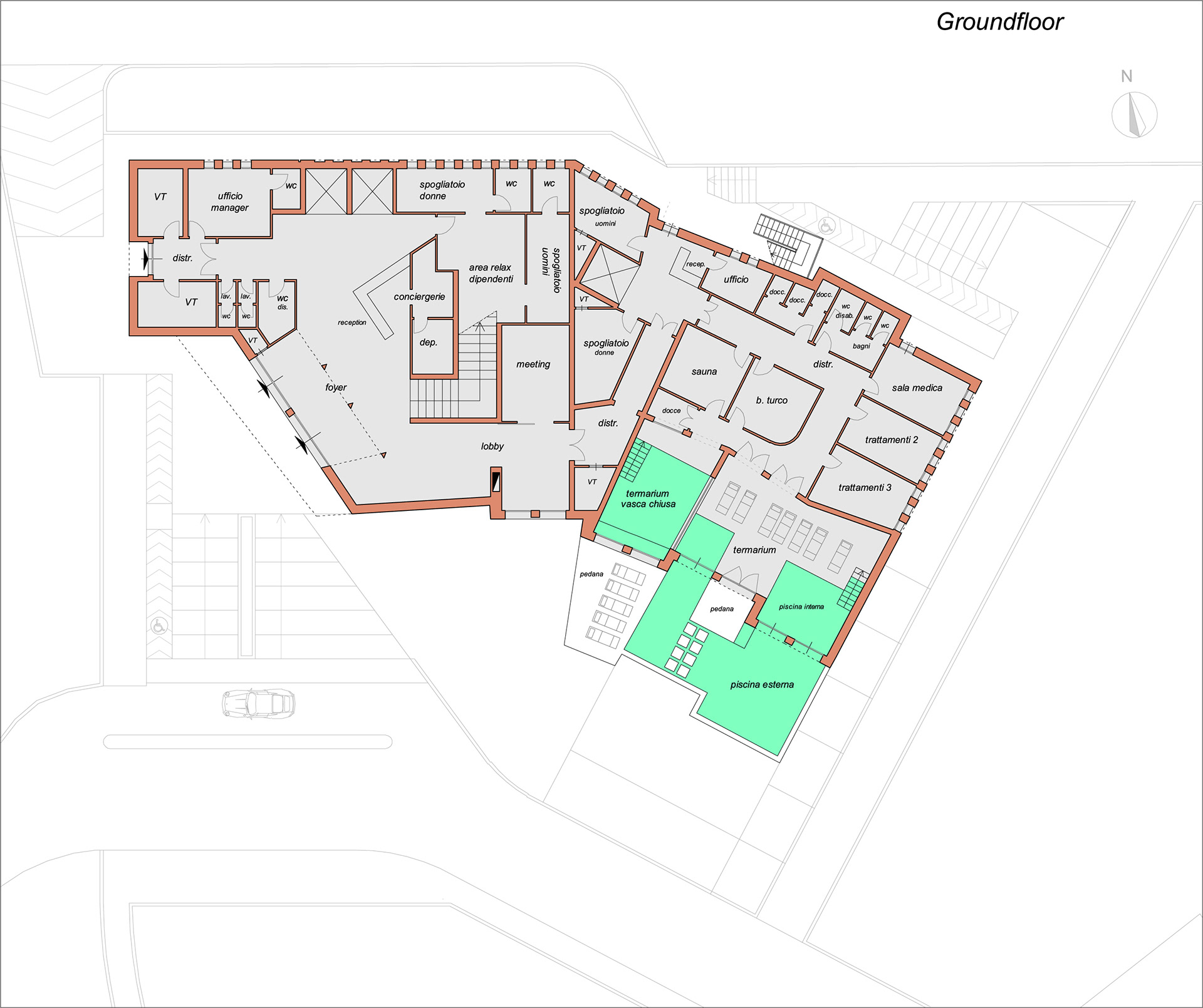
RECUPERO DI VOLUMI DISMESSI PER PROGETTO DI ALBERGO / TERME - grosseto
You may also like
A P P A R T A M E N T O D _ B
2019
T U R C A C C H I O L O
2014
m y _ c o z y _ c l o u d s
2024
S O T T O T E T T O
2024
G R A F I C H E_C A S C H I
2008
s t u d i o d e n t i s t i c o
2023
c a v a g l i o n i
2023
V I L L A B I F A M I L I A R E
2020
t o r r e d i s _ g
2024
A P P A R T A M E N T O_C
2016
↑
Back to Top